![]() |
Vol. 4, No. 3, Setiembre – Diciembre, 2025
Recibido: 10/08/25; Revisado: 01/10/25; Aceptado: 11/11/25; Publicado: 24/11/25
DOI: https://doi.org/10.57188/RICSO.2025.823
Centro histórico: análisis situacional de la estructura colonial del Colegio San Juan Trujillo
David Gonzalez
Espino*![]()
Universidad Nacional de Frontera, Perú
Resumen
El centro histórico de Trujillo tiene una variedad de edificaciones patrimoniales que se reflejan en casonas, conventos, iglesias, estanque, murallas, hospitales entre otros que forman parte de la ciudad. El objetivo del trabajo fue realizar un análisis situacional de parte de la arquitectura colonial del Colegio San Juan ubicado en el jirón independencia. En cuanto a la metodología se desarrolló mediante un enfoque cuantitativo, del tipo básico, y diseño no experimental. La muestra del estudio fue seleccionada en siete (07) ambientes que forman parte de la primera planta del colegio San Juan. Como resultados tenemos que los muros están con un daño fuerte del 57.14%, en cuanto a los pisos se determina un daño moderado del 42.90%, y tenemos que los techos que reflejan un daño fuerte del 57.14%. El patrimonio edificado debe ser intervenido a nivel de conservación preventiva a la brevedad posible con la finalidad de proteger la estructura de los ataques químicos como son los carbonatos, humedad relativa [HR], lluvia y otros agentes.
Palabras clave: Patrimonio cultural; ciudad histórica; arquitectura; arqueología
Historic Center: Situational analysis of the colonial structure of the Colegio San Juan Trujillo
Abstract
The historic center of Trujillo has a variety of heritage buildings reflected in mansions, convents, churches, ponds, walls, hospitals, among others that are part of the city. The objective of this work was to perform a situational analysis of part of the colonial architecture of the San Juan School located on Jirón Independencia. The methodology was developed through a quantitative approach, of the basic type, and a non-experimental design. The study sample was selected from seven (07) rooms that are part of the first floor of San Juan School. The results show that the walls have a strong damage of 57.14%, as for the floors, a moderate damage of 42.90% is determined, and the roofs reflect a strong damage of 57.14%. The built heritage must be intervened at the level of preventive conservation as soon as possible in order to protect the structure from chemical attacks such as carbonates, relative humidity [RH], rain, and other agents.
Keywords: Cultural heritage; historic city; architecture; archaeology.
Centro histórico: análise situacional da estrutura colonial do Colégio San Juan Trujillo
Resumo
O centro histórico de Trujillo possui uma variedade de edifícios patrimoniais que se refletem em mansões, conventos, igrejas, lagoas, muralhas, hospitais, entre outros, que fazem parte da cidade. O objetivo do trabalho foi realizar uma análise situacional de parte da arquitetura colonial do Colégio San Juan, localizado na rua Independência. Quanto à metodologia, foi desenvolvida através de uma abordagem quantitativa, do tipo básico, e um desenho não experimental. A amostra do estudo foi selecionada em sete (07) ambientes que fazem parte do primeiro andar do Colégio San Juan. Como resultados, temos que as paredes apresentam danos graves em 57,14%, enquanto que os pisos apresentam danos moderados em 42,90% e os telhados apresentam danos graves em 57,14%. O patrimônio construído deve ser intervencionado em nível de conservação preventiva o mais rápido possível, com o objetivo de proteger a estrutura de ataques químicos, como carbonatos, umidade relativa [UR], chuva e outros agentes.
Palavras-chave: Patrimônio cultural; cidade histórica; arquitetura; arqueologia
1. Introducción
El patrimonio cultural se define en las categorías material e inmaterial, en cuanto a lo material tenemos la presencia de diversos objetos hechos de varios materiales, así también encontramos al patrimonio edificado con diversos tipos de estructuras. Es así que el patrimonio cultural se refleja en representaciones de identidad y territorio por tanto se vuelven vitales para la identificación, realidad y perspectiva del entorno de la sociedad (Andrade, 2025)
El patrimonio edificado se va develando en diversos tipos de construcciones que se distribuyen en las ciudades forman parte del paisaje urbano e histórico en el transcurso del tiempo entre las cuales se encuentran; casonas, iglesias, monasterios, hospitales, palacios, teatros, antiguas murallas, quintas, y plazuelas.
En cuanto a la línea de tiempo en el caso de la ciudad de Trujillo ubicada en la provincia de Trujillo, departamento de La Libertad en el Perú, esta fue fundada por Francisco Pizarro Gonzalez en el mes de marzo de 1535 (las evidencias apuntan a la fecha del 05 de marzo) anterior a la fundación habitaron el territorio diversas culturas prehispánicas como los Moche, Sican, Huari, Chimú e Incas.
Miguel de Feijoo (1763) describe la ciudad de Trujillo ubicada en el valle del chimo que fundada por don Francisco Pizarro y que esta ciudad tiene una forma oval por causa de una muralla. En cuanto a los trazos de las ciudades tenemos aquellas que se modelaron en Europa bajo un modelo griego y luego romano que se determinan como formato ortogonal donde se establece un orden para las construcciones.
Es así como el diseño de las ciudades en el continente americano determinó trazos ortogonales como es el caso de Lima en solares de 13x9, y en el caso de la ciudad de Trujillo fue de 8x4 (Gonzalez, 2020). En trazo de la ciudad de Trujillo fue desarrollado a cordel utilizando como centro la plaza mayor a partir de donde se van organizando las manzanas en forma de damero que sumaron 24 y cubrieron un área de 400,000m2 (Castañeda, 2009)
La ciudad fue desarrollando una expansión urbana en forma de damero ortogonal con solares que fueron asignándose a los primeros vecinos, y luego con el paso del tiempo se convirtieron en espacios de reunión y actividades vinculadas al comercio, artesanía y otros.
![]() |
En cuanto a la protección del patrimonio cultural edificado tenemos una diversidad de normativas internacionales que se reflejan en compendios declarativos que buscan preservar los centros históricos como es el caso de la carta de Atenas del año 1931 donde se determina; que la conferencia escucha principios generales y teóricos sobre la protección de los monumentos (Instituto Nacional de Cultura, 2007)
Por otro lado, también existe la preocupación por el tema de conservar y restaurar los sitios y monumentos históricos que están señalados en la carta de Venecia del año 1964 que dice: los monumentos históricos comprenden la creación de la arquitectura y conjuntos urbanos que son testimonios de la civilización, el significado y el acontecimiento histórico (Icomos, 1965)

Figura 2. Centro histórico de la ciudad de Trujillo que lleva la forma desde 1685 con el diseño perimétrico de la Muralla.
La ciudad de Trujillo cuenta con una diversidad de elementos arquitectónicos que se reflejan en casonas, estanques de agua, murallas, iglesias, conventos, colegios, plazas y otros tipos de inmuebles que forman parte del centro histórico. Por otro lado, en el transcurso del tiempo se han desarrollo en el perímetro de la ciudad una diversidad de modificaciones arquitectónicas en los estilos virreinales, republicanos y la simulación de estilos republicanos en diversos edificios.
Tabla 1.Criterios normativos de intervención desarrollados por el Ministerio de Vivienda (2021)
|
Puesta en valor |
Obras de acondicionamiento |
Obra remodelación |
Obra de ampliación |
|
Las intervenciones que se realizan para la puesta en valor deben centrarse en volumetría y altura original. |
Se consideran las partes de cocina y servicios higiénicos que se pueden reparar sin afectar a la estructura. |
Se permiten modificaciones parciales o totales. |
Se pueden realizar en las partes interior y exterior de un lote. |
Dentro de los edificios emblemáticos del centro histórico de la ciudad tenemos las instalaciones del Colegio Nacional San Juan que heredo un convento como sede para el dictado de clases. En 1557 mediante sesión de cabildo se identifican tres acequias que pasan por la ciudad de Trujillo, de las cuales la segunda se le denomina acequia de “San Francisco” en alusión al convento (Vega y Vega, 1991)
La fundación de la institución fue en 1854 pocos años después de la independencia del Perú siendo un colegio republicano alojado en instalaciones de estilo virreinal. El colegio nacional San Juan nace con el nombre de Colegio de Ciencias de Trujillo como parte de la reforma educativa que se establece en el primer gobierno de Ramon Castilla (1845-1851)
Con las reformas educativas del gobierno de Ramon Castilla mediante resolución suprema se crea el 18 de mayo de 1854 el Colegio de Ciencias de Trujillo que con el paso del tiempo se llamaría Colegio San Juan siendo gestor Monseñor Agustín Guillermo Charun (Quiroz, 2015, p.55)
Con el paso del tiempo el colegio ocupa la estructura del convento de San Francisco que está considerado como Monumento Histórico Artístico del Centro Histórico de Trujillo mediante Resolución Suprema 2900 de 1972.
Es así que con el pasar de los años el colegio desarrollo servicios educativos a los estudiantes de nivel secundario en el primer y segundo piso, sin embargo, factores como la falta de mantenimiento, el clima, y movimientos telúricos han daño la estructura del colegio y en la actualidad permanece cerrado. Diversas partes del colegio presentan grietas en las paredes, así también los techos de madera y caña se están deteriorando de forma progresiva.

Figura 3. Libro de 1924 que recopila diversas actas de sesiones de los docentes del Colegio San Juan en el tiempo.
Nota. Se puede observar al pie de la letra que se propone la apertura del Colegio San Juan para el 23 de agosto de 1854.
De acuerdo al Ministerio de Cultura (2000) se determina como primer dato la reconstrucción de la iglesia y monasterio de San Francisco en 1619, luego existe una segunda reconstrucción parcial en 1759 y en relación a los materiales usados para la construcción fueron el adobe, ladrillo y roca, madera, caña, losetas y torta de barro.
En cuanto a los cimientos en general de las diversas edificaciones que forman parte del centro histórico de Trujillo están en base a rocas del tipo canto rodado que son extraídas de los ríos, están rocas cumplen la función cimientos, en tal sentido es importante recordando que Trujillo tiene un estrato arenoso. Por otro lado, las rocas a nivel de mecánica de suelo permiten la estabilidad de las estructuras para iniciar la construcción de una a dos plantas.

Figura 4. Patio interior del colegio San Juan de Trujillo.
Gonzalez (2025) desarrolla un trabajo de investigación sobre modelo arquitectónico hidráulico del estanque virreinal de la ciudad de Trujillo. El objetivo de la investigación fue determinar el modelo hidráulico del Estanque Virreinal. El enfoque de investigación fue cualitativo y diseño de teoría fundamentada. Como resultado tenemos la presencia de canal alimentador, sedimentador, canales, tuberías de cerámica, arco abovedado y muralla.
Gonzalez (2024a) desarrolla trabajo de investigación sobre análisis situacional de las casonas de la provincia de Sullana. El objetivo del trabajo fue desarrollar un análisis situacional de la arquitectura de las casonas que fueron 23 con el resultado que el 47.83% se encuentran en buen estado. El enfoque de investigación fue cuantitativo, del tipo básica, y diseño no experimental. Estas casonas conservan un estilo republicano y que sirven como vivienda.
Gonzalez (2024b) desarrolla trabajo sobre estanque virreinal de Trujillo a través del análisis del ph en material constructivo para determinar la conservación del mismo. El objetivo del trabajo fue analizar los niveles de ph en ladrillo para determinar la conservación del material constructivo. El enfoque de investigación fue cuantitativo, del tipo básica, y diseño no experimental. Como resultado de las 30 muestras de estudio se determinó un 7.40ph que se considera ligeramente alcalino.
De La Torre (2024) desarrolla investigaciones sobre normativa del centro histórico para salvaguarda urbano en la ciudad de Tepic; Nayarit México. El objetivo de la investigación fue analizar el marco normativo en torno al centro histórico para definición y salvaguarda del patrimonio urbano. En cuanto a la metodología es a través del análisis de los tres niveles normativos de los centros históricos. A nivel de conclusiones se determina que el análisis de la normativa de los centros históricos ayuda en la preservación del patrimonio.
El objetivo de la investigación es realizar un análisis situacional de la estructura arquitectónica colonial del Colegio San Juan ubicado en el centro histórico de la ciudad de Trujillo.
2. Metodología
En cuanto a los materiales que son parte del análisis tenemos las diversas estructuras arquitectónicas que forma parte de la propiedad del colegio nacional San Juan que de acuerdo con el Ministerio de Cultura es un bien integrante del patrimonio cultural. Así también se aplicaron fichas de registro que determinar el estado de conservación del patrimonio edificado ubicado en el jr. Independencia 647 centro histórico de Trujillo.
· 7 ambientes de la primera planta
· Fichas de conservación
· Registro fotográfico
En referencia al enfoque de investigación este es cuantitativo porque a través del uso de base de datos extradíos de las fichas se mide el estado situacional a nivel de conservación preventiva de los ambientes de la primera planta.
Mediante el conteo matemático de la información recolectada en cada fase deberá ser secuenciada para evitar cualquier tipo de confusión en el transcurso del trabajo de investigación (Hernández y Mendoza, 2018).
En cuanto al tipo de investigación este será de tipo básica, ya que la finalidad del trabajo es general nuevos conocimientos que tiene relación con la conservación preventiva del patrimonio edificado.
Las investigaciones básicas tienen como característica orientar resultados para tener nuevos conocimientos teóricos con la característica de no manipular la variable o variables de estudio (Muntane, 2010).
En cuanto al diseño de investigación es no experimental, esto significa que el trabajo de investigación recolecta los datos buscando no manipular la variable de estudio, siendo la meta observar el comportamiento.
3. Resultados
En cuanto a los resultados del trabajo de investigación sobre la evaluación de conservación preventiva del patrimonio edificado debemos indicar que se desarrolló en la primera planta del colegio San Juan ya que la segunda planta está deteriorada.

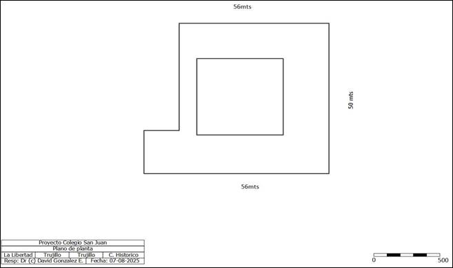
Figura 5. Plano de planta del área que pertenece a los ambientes del primer y segundo piso del colegio San Juan de Trujillo.
La distribución del colegio San Juan obedece a una arquitectura virreinal donde coexistió un convento adjunto a la iglesia de San Francisco que son edificios que forman parte de la evolución de la ciudad desde los inicios de su fundación.

Figura 6. Análisis de los muros que forman parte de los ambientes analizados de la primera planta del Colegio San Juan.
Como se puede observar en la figura 6 tenemos que un 57.14% de los muros presentan un daño fuerte, mientras un 28.57% tienen un daño moderado, y un 14.29% tienen un daño leve. Las acciones climáticas como la humedad, y las fuertes lluvias entre otros factores ambientales hacen que los muros presenten fisuras.
Tabla 2. Análisis de los pisos que parte de los ambientes analizados de la primera planta del Colegio San Juan.
|
|
|
|||
|
|
Frecuencia |
Porcentaje |
||
|
Válido |
leve |
2 |
28,6 |
|
|
Moderado |
3 |
42,9 |
||
|
Fuerte |
2 |
28,6 |
||
|
Total |
7 |
100,0 |
||
Como se puede observar en la tabla 2 se determina que el 42.90% de los pisos tienen un daño moderado, mientras un 28.60% tiene daño fuerte y un 28.60% de los pisos tiene daño leve.

Figura 7. Ambiente de un aula de la primera planta que pertenece al colegio San Juan del centro histórico de Trujillo.
Como se puede observar en la imagen los pisos y muros presentan en varias partes desgaste y daño que son producto de factores ambientales, y de la falta de conservación preventiva.

Figura 8. Análisis de los techos que forman parte de los ambientes analizados de la primera planta del Colegio San Juan.
Como se puede observar en la figura 8 se determina que un 57.14% los techos tienen un daño fuerte, por otro lado, un 28.57% tiene un daño moderado, y un 14.29% tiene un daño leve.
4. Discusión
En relación con el trabajo de Gonzalez (2025) sobre modelo arquitectónico hidráulico del estanque virreinal de la ciudad de Trujillo. Tiene como resultado la presencia de estructuras como; canal alimentador, sedimentador, canales, tuberías de cerámica, arco abovedado y muralla. En cambio, nuestra investigación realiza una evaluación de la conservación preventiva de las instalaciones del Colegio San Juan teniendo un 57.14% tenemos los muros con un daño fuerte, por otro lado, los pisos con 42.90% tienen un daño moderado, y los techos con un 57.14% tienen un daño fuerte.
En relación con el trabajo de Gonzalez (2024a) sobre análisis situacional de las casonas de la provincia de Sullana. El resultado de la evolución indica que un 47.83% se encuentran en buen estado. Por otro lado, nuestra investigación determina con un 57.14% tenemos los muros con un daño fuerte, por otro lado, los pisos con 42.90% tienen un daño moderado, y los techos con un 57.14% tienen un daño fuerte.
En relación con el trabajo de Gonzalez (2024b) sobre estanque virreinal de Trujillo a través del análisis del ph en material constructivo. Como resultado se determinó un 7.40ph considerado ligeramente alcalino. En cuanto nuestra investigación se determina con un 57.14% tenemos los muros con un daño fuerte, por otro lado, los pisos con 42.90% tienen un daño moderado, y los techos con un 57.14% tienen un daño fuerte.
Finalmente, en relación al trabajo De La Torre (2024) sobre normativa del centro histórico para salvaguarda urbano en la ciudad de Tepic; Nayarit México. Tiene como conclusiones se determina que el análisis de la normativa de los centros históricos ayuda en la preservación del patrimonio. Nuestra investigación determina con un 57.14% tenemos los muros con un daño fuerte, por otro lado, los pisos con 42.90% tienen un daño moderado, y los techos con un 57.14% tienen un daño fuerte.
5. Conclusiones
El centro histórico de Trujillo se empieza a desarrollar desde la fundación como una ciudad hispana en 1535 a través de un formato ortogonal, y donde se medió a través de las varas los solares que fueron repartidos entre los primeros vecinos.
Las construcciones que se desarrollan en el tiempo están relacionadas a casonas, conventos, iglesias, hospitales, estanques, murallas entre otros que van formando de forma progresiva el centro histórico de la ciudad.
El convento y la iglesia de San Francisco están presentes desde los inicios de la ciudad de Trujillo formado parte del patrimonio edificado del centro histórico en el actual jirón Independencia.
A partir de 1854 el Colegio de Ciencias de Trujillo que luego tomara el nombre de San Juan en el transcurso del tiempo ocupa el convento de San Francisco como sede para establecer el funcionamiento de la institución. Actualmente el colegio tiene en propiedad la parte que correspondió en su momento al convento de San Francisco.
En cuanto al patrimonio edificado tenemos que la arquitectura del primer y segundo piso del colegio se encuentra en un estado de conservación inadecuado hecho que se refleja en los suelos, muros y techos.
En consecuencia, mediante el análisis de los muros que forman parte de los siete espacios arquitectónicos evaluados tenemos que 57.14% de los ambientes presentan un daño fuerte en la estructura.
En cuanto al análisis realizado de los pisos que forman parte de los siete espacios arquitectónicos que fueron evaluados tenemos que un 42.90% tiene un daño moderado en la estructura.
Finalmente, en los resultados del análisis realizado a los techos que forman parte de los siete espacios arquitectónicos que fueron evaluados tenemos que un 57.14% tienen daño fuerte en la estructura. Por ello es importante tomar en cuenta la evaluación para establecer un plan de conservación preventiva para la edificación que presenta desgaste, fisuras, y otros daños en la infraestructura de los ambientes siendo el inicio de un posible un colapso a un mediano plazo de la edificación.
6. Referencias
Andrade, P. (2025). Patrimonio cultural contemporáneo: una aproximación a los usos de la teoría de DON. Revista Antropologías del Sur, 11 (22) 203-208 http://dx.doi.org/10.25074/rantros.v11i22.2867
Castañeda, J. (2009). Notas para una historia de la ciudad de Trujillo del Perú en el siglo XVII. Revista Museo Nacional de Etnología, 159-189
De La Torre, A. (2024). Normativa centro histórico: definición y salvaguarda del patrimonio urbano. Caso ciudad de Tepic, Nayarit, México. Revista Devenir, 11 (21) 49-68 https://doi.org/10.21754/devenir.v11i21.1644
Feijoo, M. (1763). Relación descriptiva de la ciudad, y provincia de Truxillo del Perú. Madrid: Imprenta del Real.
Gonzalez, D. (2025). Modelo arquitectónico hidráulico del estanque virreinal de la ciudad de Trujillo: un estudio basado en la evidencia arqueológica, Perú. Revista Ciencia & Sociedad, 5 (3) 385-401. https://cienciaysociedaduatf.com/index.php/ciesocieuatf/article/view/182
Gonzalez, D. (2024a). Patrimonio cultural: análisis situacional de las casonas de la provincia de Sullana. Revista Aypate, 3 (4) 1-12 https://doi.org/10.57063/ricay.v3i4.114
Gonzalez, D. (2024b). Estanque virreinal de Trujillo: análisis del ph en material constructivo para determinar la conservación. Revista Pensamiento Transformacional, 4 (12) 8-28 https://doi.org/10.63526/pt.v4i12.96
Gonzalez, D. (2020). Modelo hidráulico virreinal utilizado en el centro histórico de Lima para abastecimiento de agua. Revista Devenir, 7 (14) 91-106 https://doi.org/10.21754/devenir.v7i14.811
Hernández, R. y Mendoza, C. (2018). Metodología de investigación; las rutas cuantitativa, cualitativa y mixta. McGraw Hill
ICOMOS. (1965). Carta internacional sobre la conservación y la restauración de monumentos y sitios.
Instituto Nacional de Cultura. (2007). Documentos fundamentales para el Patrimonio Cultural. Lima: INC
Ministerio de Cultura. (2000). Ficha técnica monumentos históricos artísticos centro histórico de Trujillo del Perú. Dirección Desconcertada de Cultura de La Libertad, Departamento de Arquitectura.
Muntane, J. (2010). Introducción a la investigación básica. Revista RAPD ONLINE, 33(3), 221-227
Quiroz, M. (2015). La educación pública en la ciudad de Trujillo (1850-1894). Aspectos políticos, sociales, culturales y filosóficos. [Tesis de Licenciatura, Universidad Nacional de Trujillo]
Resolución de 2021. Resolución Ministerial 185-2021-VIVIENDA. Norma técnica A.140 bienes culturales inmuebles del reglamento nacional de edificaciones. 1 de julio 2021.
Resolución de 1972. Resolución Suprema 2900. Declarar Monumentos, Ambientes Urbanos Monumentales y Zonas Monumentales los inmuebles y aras urbanas de Departamento de Arequipa, Departamento de Lambayeque, Departamento La Libertad, Departamento de Lima y Departamento de Ica. 28 diciembre 1972.
Vega, M. y Vega, C. (1991). El agua de la ciudad de Trujillo. SEDAPAL